countryplans logo
CountryPlans.com do it yourself country house plans

Helping builders since 1978. Online since 1997.

The 1.5 Story Cottage

The 20’x30’ One and a Half Story Cottage House Plans Kit from CountryPlans.com

Specs

  • 875-950 square feet (20’ x 30’)
  • Full-sized loft
  • 1-2 bedrooms (loft can be 2nd bdrm)
  • 1 bathroom
  • 3 Foundation plans included
  • Porch plans included
  • Electrical & plumbing plans included
  • Materials List included
  • Editable CAD file available 
20x30 1.5 Story Cottage from CountryPlans.com

Purchase Plans 


  • PDF/CAD plans generally arrive within hours and are delivered to the email address on file with PayPal (unless you provide another address)
  • Choose PDF/CAD plans to reduce paper usage and save money
  • Paper plans include 5 sets of plans and arrive in a few days via USPS

Select an option:

Overview

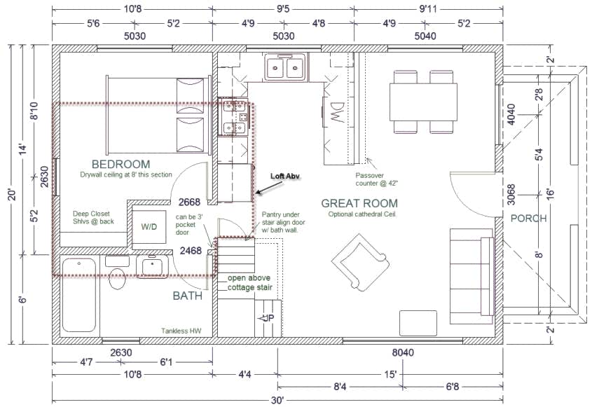
This simple to build classic cottage has between 950 sq. ft. to 875 sq. ft. of living area counting the full sized loft and the 20'x 30' main floor (you have options about the size of the loft). Since all floors and roof bear on the outside walls, the interior of the floor plan can be redesigned to your liking. The framing system is simple and is designed for small crew construction so it can be built by owner-builders. This is one of our most popular plans. The 6-page materials list includes all materials for the post & pier foundation, all framing, hardware, insulation, windows and doors, drywall, electrical, plumbing and interior trim. This list is in Word DOC format (and PDF) so it can be modified and updated as the project progresses.

 

The floor plan at the top of the page shows a small loft above the bath and main floor bedroom. The Great Room can have an open cathedral ceiling with rafter ties, or continue the 2x12 loft floor joists making the usable loft area the full length of the building. There are three different foundation types in the plans: concrete crawlspace, slab on grade (2 versions for different climates) and a post and pier foundation. You choose the one you want to build. If you wish, this plan can be extended in length as the structural frames can be duplicated on 2' increments. It can be built with a full or partial loft.

The plan set includes 11 sheets of drawings including all drawings needed to apply for most building permits:


  • 3 foundation plan sheets - one each for post & pier, slab or crawlspace foundations (you will submit one of these)
  • Main floor and porch plan with electrical layouts and door and window call-outs
  • Cross section drawing showing framing and insulation levels, stairway construction and a header chart for wall openings. Diagrams for locally made roof trusses (for easy engineering). 
  • Loft floor plan with electrical and a loft framing plan with two ways of constructing the floor
  • Loft roof details and cross section of site built truss and wall to truss connections
  • Loft floor to wall details for supporting the joists or exposed beam ceiling
  • Porch and deck plans for both a hip end porch (shown above) and a wrap around porch or deck. This can be extended as desired. 
  • Includes deck and roof framing details & railing details
  • Four building elevations showing roofing, roof trim details, siding suggestions and porch and roof slopes. Includes total Bldg. height (22'-6")
  • Trim corner details, window & door trim details (inside and outside), corner trim detail, window hood detail, and tips on extra money saving ideas for finishes
  • Standard window and door sheet for cutting out and replacing doors and windows in the existing plans (allows cut & paste drafting for simple changes)
  • Plan notes include suggestions for for heating and cooling and two different locations for the hot water tank (electric or gas)

Here is a view looking at the steep cottage staircase and a beam and deck ceiling over the Great Room. There is also a stair layout for a full sized "U" shaped stair if needed. This will take more floor area but often works better with a full length loft. With the steep stair a pantry is tucked under the stairway.

Plans also include:

  • Notes on how to customize your plans
  • An Open Beam Ceiling guide
  • A How to Read Plans guide with diagrams and a glossary of standard building terms
  • A checklist and tips for going to the building department
  • Info on foundations and soil types
  • Platform Framing info
  • Earthquake and Wind Bracing info
  • Alternative cottage stair plans for use with the loft (or basement)
The 20’x30’ One and a Half Story Cottage House Plans Kit from CountryPlans.com

Here is everything that comes with a plan set (note that paper orders come with 5 sets of printed plans, only one is shown here)

A Customer’s Story

Here are photographs and the story of a rustic owner-built home in remote Prince of Wales island in Southeast Alaska: 

I picked a plan from CountryPlans for the design and affordability.  Like most of us everything is always a stretch financially and this was no different!  I wanted a plan that used common materials and dimensions to keep costs down and this was it.  One step at a time and my cabin came to life.  Finding a lot with a low initial cost and easy financing was first and the University of Alaska made that happen. Each step was the total of what I had available to put into the cabin.  I did not buy the lot and imagine the cost would be X dollars. There would have been no cabin if I imagined the total cost of construction.  After purchasing the lot, my only focus was getting building site cleared. The focus was then the foundation and so on.  I had no idea how long the cabin would take. Each time I would begin collecting what I needed from a variety of places.  I became a fan of Craigslist!  I would watch daily and collect things such as a $50.00 wood stove and the slate remnants to put behind it.   With no timelines, costs go way down. Everything was exciting and became part of my dream as I imagined it being used.

As construction began, the dreams developed into memories.  We went from camping on a gravel pad to a cabin over 5 years.  We froze inside with a roof over our heads but no windows or heat and tar paper on the exterior walls.  But in the morning we woke up to our dreams again.  The steaming cup of coffee quickly made us forget that we were "roughing it." Windows and insulation WOW now we are living the high life! Pasta and Ragu cooked over a camp stove teetering on a scrap piece of plywood made into a makeshift kitchen counter and we may as well been at the Ritz! I really can't express how exciting each step was for myself, my family and friends.  I have never regretted starting my Cabin.  If I were 5 years into it and had just a one room 12x16 with a simple plywood loft and an unfinished interior, I would still be as excited as I am today.

So what is the point of all of this babbling?  In the words of the Nike marketing department, 'just do it!'  I was as excited as a kid at Christmas with just a set of plans and a dream.  Now I have a cabin, a heart full of memories and family and friends with a place they can use for life. It was one step at a time.  Make no mistake. My friends put in countless hours of blood and sweat into this cabin.  For that I will always be grateful, and I hope they have fond memories as well. My advice to others would be to just get started and look to the great help of the Country Plans members for assistance.


Thanks, John, for creating CountryPlans.  If I had not found your site with cabins for all of us, I very well might still be dreaming.


Mike Cowan

20x30 1.5 Story Cottage from CountryPlans.com by Mike

The finished 1.5 Story Cabin. 

The builder, Mike, just off Prince of Wales Island. 

20x30 1.5 Story Cottage from CountryPlans.com by Mike

Getting framed up and starting to weatherize. 

The stairway framing and bedroom and bath behind. Mike reversed the floor plan from the standard plan layout. Note that he has carried the loft floor all the way over the great room and kitchen. This area can also be left open and cathedral.

20x30 1.5 Story Cottage from CountryPlans.com by Mike in the snow

The weatherized 1.5 Story Cottage weathering a little Alaska storm.

Cute, jumping house at CountryPlans.com
CountryPlans.com logo

Helping builders since 1978. Online since 1997.