countryplans logo
CountryPlans.com do it yourself country house plans

Helping builders since 1978. Online since 1997.

Little House Plans Kit

The 14x24 Little House Cottage from CountryPlans.com

14’ x 24’ version with steep gable roof

The 10x14 Little House Cottage from CountryPlans.com

10’ x 14’ version with flat roof

Specs

  • 140-336 sq. ft. (Comes with three different plans included: 10x14, 12x18, & 14x24)
  • The perfect starter house project
  • Works great as a workshop
  • Can be used as a home office
  • Makes a cozy get-away cottage
  • Multiple foundation types (all included)
  • Easy to build
  • Materials List included

Purchase Plans 


  • PDF plans generally arrive within hours. 
  • Paper plans include 5 sets of plans and arrive in a few days via USPS
  • Choose PDF plans for an eco-friendly option and to reduce paper usage and save money
  • PDFs are delivered to your email address on file with PayPal unless you provide another address

Select an option:

Overview

The Little House (some might call it a Tiny House) Plans Kit has complete plans for three sturdy long-lasting houses you can build inexpensively by yourself or with the help of a friend, spouse or kids. Each of these houses can be used as a camping cabin, starter house, workshop or home office. Each can be built with a walking roof deck or with a steep pitched roof and a small loft. 


The Plans kit includes construction plans for all three houses (10x14, 12x18 and 14x24) and full instructions. You can build all three. The plans include a simple to build post and pier foundation for a permanent little house. This latest version also includes details for an even easier to build skid foundation for a closer to the ground movable cabin, storage shed or playhouse - any building that won't need access to plumbing under the floor.  Here are the three different floor plan options:  (click to expand the photos)

Plans include

  • A ten page booklet with complete building and customization instructions. Including: how to adjust your cabin for climate & soil variations, insulated footings for cold climates, working with the building department, how to find the right builder, and lumber yard tips for buying the right materials. 
  • Eight pages of plans which includes a library of window and door layouts. 
  • A step-by-step construction checklist for building each phase of the house. 
  • A Materials List for ordering and building any of the three houses.
The Little House Plans Kit from CountryPlans.com includes
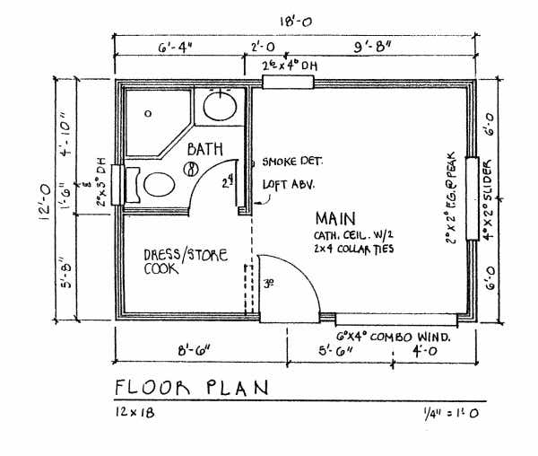
12x18 Little House floor plan from CountryPlans.com

Bonus tools included

  • An Inclinometer with surveying charts. Use this tool to determine the slope of a hillside and layout the best driveway or trail to your house. Use it to estimate the height of trees and to locate where they might fall. (You don't want to build under storm blown trees!) You can also use it to do simple surveying such as laying out a foundation. Instructions included. 
  • A Solar slide rule that shows you how high in the sky the summer and winter sun is for your particular latitude. Use this with the inclinometer and you will know what trees block your winter sun and which ones will give you summer shade. Use this to decide what to cut down and where to do new plantings. You can take the solar slide rule and inclinometer with you when looking at property to understand what kind of sun it will get throughout the year. 
  • False Front option for the Little House. This western store front can be added to any of the cabin plans and gives an old-town feel to a home office, workshop, or guest outbuilding. The deck/boardwalk out front can tie back into the big house.

The Solar Slide Rule and Inclinometer (included)

Our story of building the Little House

My two sons and I built the smaller (10'x14') cabin. We used only hand tools and a circular saw and worked on it part time over three weeks. The house was weather-tight in 11 days. We spent about $1,400 (or $10/SF in the year 1998) buying all construction materials new from our local lumberyard except for the used windows and doors. It has complete insulation, interior finished wood on the walls and ceiling, and a small wood stove and chimney.

Pine-paneled interior walls

Cozy, with lots of light

The winter-ready Little House

Cheap labor, if you can convince your sons it’ll put hair on their chests

Cute, jumping house at CountryPlans.com
CountryPlans.com logo

Helping builders since 1978. Online since 1997.