countryplans logo
CountryPlans.com do it yourself country house plans

Helping builders since 1978. Online since 1997.

The Solar Farmhouse

28x36 Solar Saltbox Farmhouse Plans from CountryPlans.com
Solar Saltbox Farmhouse Elaborated saltbox diagram

Specs

  • 1516-2094 square feet (28’x36’)
  • 3 bedrooms
  • 2 bathrooms 
  • Porch plans included
  • Bay window plans included
  • Solar Sunspace plans included
  • Crawlspace foundation
  • Paper Plans include 5 printed copies (for providing to various contractors)

Purchase Plans 


  • PDF plans generally arrive within hours. 
  • Paper plans include 5 sets of plans and arrive in a few days via USPS
  • Choose PDF plans for an eco-friendly option and to reduce paper usage and save money
  • PDFs are delivered to your email address on file with PayPal unless you provide another address

Select an option:

Overview

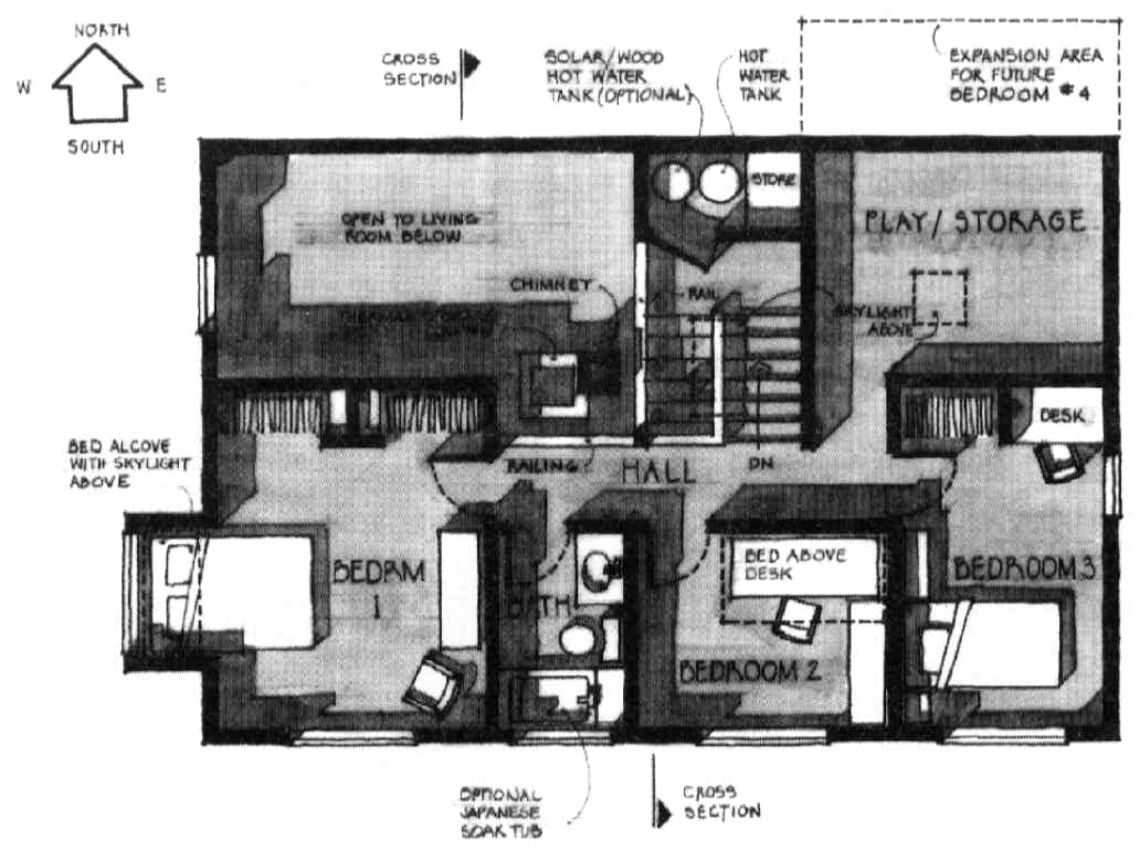
The Solar Farmhouse is what can be called an “elaborated saltbox”. This is the house we built for ourselves. It consists of a basic main floor shape 24’ x 36’ long containing the primary living spaces. The upper floor sits on top of the south half of the main floor and is 12’ x 36’. It contains sleeping areas and an upstairs bath. The gable roof over the upper floor slants down to the north, to connect the north wall of the main floor. This provides extra height in the living room by means of the cathedral ceiling and an expanded bedroom where the upper floor structure carries through to the north wall. 


The plan has been fully “elaborated” from this basic concept to include extras which owners and builders may choose to incorporate or not (information is provided on necessary structural changes when these extras are eliminated). 


Included Extras: 

  • 14’ x 26’ solar sunspace
  • Wrap around porch
  • Living room bay window
  • Living room alcove
  • Master bedroom pop-out with glass roof
  • Northeast bedroom addition (12’ x 14’)

The construction system consists of a platform frame of plywood and joist floors sitting on a concrete perimeter foundation. The wall system is built using 2 x 6 studs and plywood sheathing. An interior exposed post and beam structure runs east/west down the center line of the building at main and upper floors. The upper floor is platform framed over the beams. The roof system consists of 12’ wide site build trusses over the upper floor in combination with 2 x 12 rafters sloping down the north half of the house.

  Plans also include:

  • Project Planner overview
  • Checklist and tips for going to the building department
  • A How to Read Plans guide with diagrams and a glossary of standard building terms
  • Platform Framing info
  • Earthquake & Wind Bracing info
  • Transoms Over Windows & Doors guide
  • Trim, Siding, & Money Saving Ideas
The 28x36 Solar Saltbox Farmhouse Plans from CountryPlans.com includes

The solar sunroom

Our Story Building Our Home

This is the house we built for our family. We spent a little over $50,000 (in 1982) getting it built to the point where we moved in. This was done over a period of five months working part-time as a project manager and subcontracting the vast majority of the construction. We wanted a feeling of openness and light, and I feel we got that.

Some people gave me a hard time about two north facing skylights in a solar house, but they are triple glazed and on a moonlit night you can walk around the house without turning on a light. Maximum energy efficiency is compromised somewhat by greater than minimum glass areas. It is a compromise we are quite happy with; a house must be more than an efficient machine. 

The floor plan works well for us (a couple with two young boys). The main floor is positively spacious with its open plan; yet the living room has a separate feel to it and does not look at the dishes or dining table. The house actually has more space than we expected to get, and the sun space and front porch are glorious luxuries. 

28x36 Solar Saltbox Farmhouse Plans from CountryPlans.com living room

The living room with bay windows and alcove

Just about finished…

The kitchen

28x36 Solar Saltbox Farmhouse Plans from CountryPlans.com living room

Years later, it’s holding up great! 

Cute, jumping house at CountryPlans.com
CountryPlans.com logo

Helping builders since 1978. Online since 1997.