countryplans logo
CountryPlans.com do it yourself country house plans

Helping builders since 1978. Online since 1997.

Victoria’s Cottage

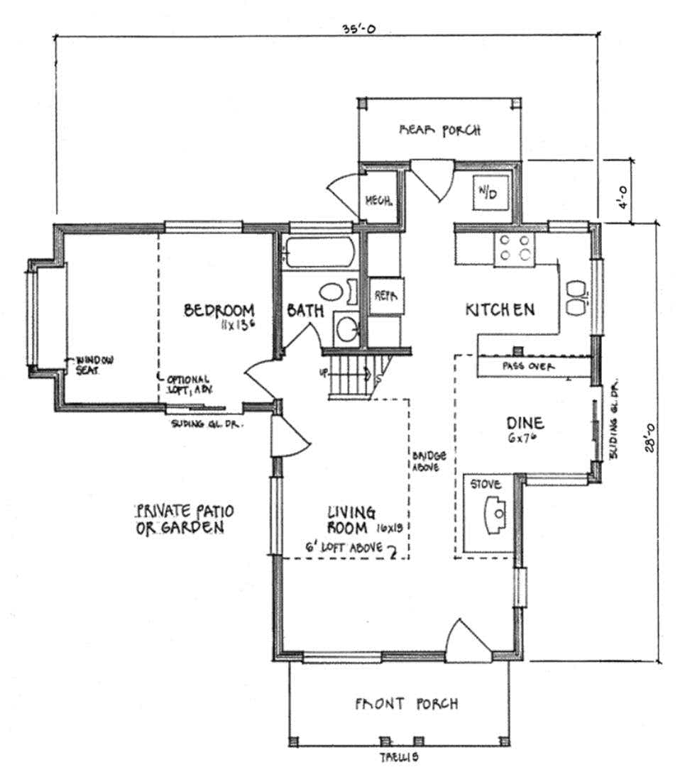
16'x28' with a 12'x14' bedroom Victoria's Cottage Plans Kit from CountryPlans.com

Specs

  • 1000 square feet (700 without a loft)
  • 1 or 2 bedrooms
  • 1 bathroom 
  • 3 Stair types, including spiral, included
  • Dining area and living area (open plan)
  • Porch plans included
  • 3 Foundation plan types included
  • Materials List included

Purchase Plans 


  • PDF plans generally arrive within hours 
  • Paper plans include 5 sets of plans and arrive in a few days via USPS
  • Choose PDF plans for an eco-friendly option and to reduce paper usage and save money
  • PDFs are delivered to your email address on file with PayPal unless you provide another address

Select an option:

Overview

The Victoria’s Cottage is a very livable small house. The main section is 16' x 28' with a 12' x 14' bedroom addition. The 16' wide section has high sidewalls and two lofts. There are porches front and back and the house is filled with light. The private patio/garden area connects the bedroom and main space with an outdoor living room. 

 

The house is designed with nine skylights in two sizes. These can be reduced or eliminated for some climates but this opens the house up to light and connects it to the outdoors and the sky. Because of this openness, this house feels much larger than its 698 sq. ft. of heated floor area (up to 1000 sq. ft. counting lofts). The home has two or three sleeping areas and a separate study/home office. The low-ceiling sides of the lofts make excellent storage areas. The bathroom has a tempered glass window that comes down close to the tub so you can slide the window open and soak while you look out at the view. The plans come with two different loft layouts (both included).

The house can be built with a concrete slab heated by a high-efficiency or tankless hot water heater. A small pump sends the hot water to two separate heating zones (main and bedroom). This also serves as a heat sink for solar inputs. Other floor options are: a standard wood floor over a concrete crawlspace; or an easy to build post and beam foundation. Plans include a floor system using engineered lightweight I-joists for quick assembly and solid squeak-free floors. The plan set includes foundation plans for a slab on grade, concrete perimeter foundation and a post and pier foundation. You can choose whichever is most appropriate for your site. It comes with two different loft configurations each with an exposed beam and deck ceiling below.

 

Bridge loft plan: 

  • 16' x 28' overall, with two lofts connected by a sky bridge, accessible by a short stair.
  • The total upper floor floor area (over 6’ high) is 189 sq ft.
  • The rear loft is 7’ 6” x 15’
  • The front loft is 5’ 6” x 15

Full bedroom loft plan: 

  • This more complete loft has more usable floor space 
  • The total upper floor area (over 6’ high) is 260 sq. ft.
  • The upper level bedroom is 11’ x 11.5’
16'x28' with a 12'x14' bedroom Victoria's Cottage Plans Kit from CountryPlans.com

Plans also include:

  • Project Planner
  • A How to Read Plans guide with diagrams and a glossary of standard building terms
  • A guide with tips for taking your plans to the building department
  • Info on foundations and soil types
  • A guide to trim, siding, and money saving ideas
  • A guide on how to build various foundation types in different climates
  • Multiple stair options detailed (included)
  • Platform Framing info
  • Earthquake and Wind Bracing info

This is top of the spiral staircase, seen from the loft. 

A Customer’s Story

This was the first house built using the Victoria’s Cottage plans. The owner did a great job with finishes and the spiral stair (one of the three stair options included in the plans) turned out nicely. 

 

The owner used the Victoria's Cottage Plans as the "big" house and the 14'x24' Builder's cottage (available in the Big Enchilada Plans Kit) as the guest house, behind the Cottage.

In this photo the Victoria’s Cottage and the Builder’s Cottage are connected by a covered breezeway. The front door is on the left (porch is yet to be built) and the kitchen are in the pop-out section.

The front porch is taking shape and you can see the large picture window in the bedroom (on the far left).

Here you can see how the windows on three sides of the room opens it up to light. The curved stair on the right goes up to the loft rooms. Note the exposed beam and deck floor for the loft above.

The kitchen and eating area from the stairway.

Cute, jumping house at CountryPlans.com
CountryPlans.com logo

Helping builders since 1978. Online since 1997.